| NIVEAU | PIÈCE | SURFACE |
Exclusivité : Appartement T4 de 81 m2 au 1er étage d'une petite copropriété
VIRY (74580)
- 81 m²
- 4 pièce(s)
- 2 chambre(s)
- NC
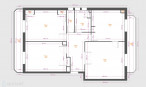
Exclusivité : Appartement T4 de 81 m2 au 1er étage d'une petite copropriété, qui se compose comme suit :
Séjour de 19m2, cuisine de 13m2 avec grande hauteur sous plafond, 2 grandes chambres, une de 17m2 et la deuxième de 16m2, une salle de bain, de nombreux placards de rangement à disposition, deux balcons, un de 6 m2 orienté Est (côté chambres) et le deuxième de 6m2 environ orienté ouest /côté cuisine /séjour), deux caves (14m2 et 5m2), un garage de 17m2 et un grenier aménageable de 87m2 complète ce bien.
Possibilité de faire un ou deux logements (rentabilité locative assurée)
Emplacement idéal en plein centre du village de Viry, avec tous les commerces à proximité immédiate :
Mairie / Ecole à 300m
Accès Autoroute à 6km
P+R Viry à 2km
Ligne TPG à 100m
Gare de Saint-Julien-en-Genevois à 5km
Centre-ville de Genève à moins de 30 minutes
Aéroport de Genève à 18km
Estimation des coûts annuels d’énergie du logement : entre 1883€ et 2547€ par an
Date de réalisation du diagnostic : 14 mars 2022
Travaux de rafraichissement à prévoir avec un beau potentiel, l’appartement est habitable en l’état.
Je reste à votre disposition pour tout complément d’information
Sextant France - Agent commercial Olivier Le Millier basé à VIRY (74) - +33 6 70 51 63 49 - honoraires charge vendeur - Plus d'informations sur sextantfrance réf.18298
Notre barème d'honoraires
* Honoraires charge vendeur.
Ce bien ne figure plus au catalogue car il a été vendu.

Montant estimé des dépenses annuelles d'énergie pour un usage standard: entre 1 883,00€ et 2 547,00€ par an.
Prix moyen des énergies indexés au 17/03/2022 (abonnement compris)
cette annonce à un ami
Veuillez réessayer à nouveau
































