| NIVEAU | PIÈCE | SURFACE |
Antibes – 4P appartement avec solarium- Nouvelle résidence avec piscine à 8 min des plages !
ANTIBES (06160)
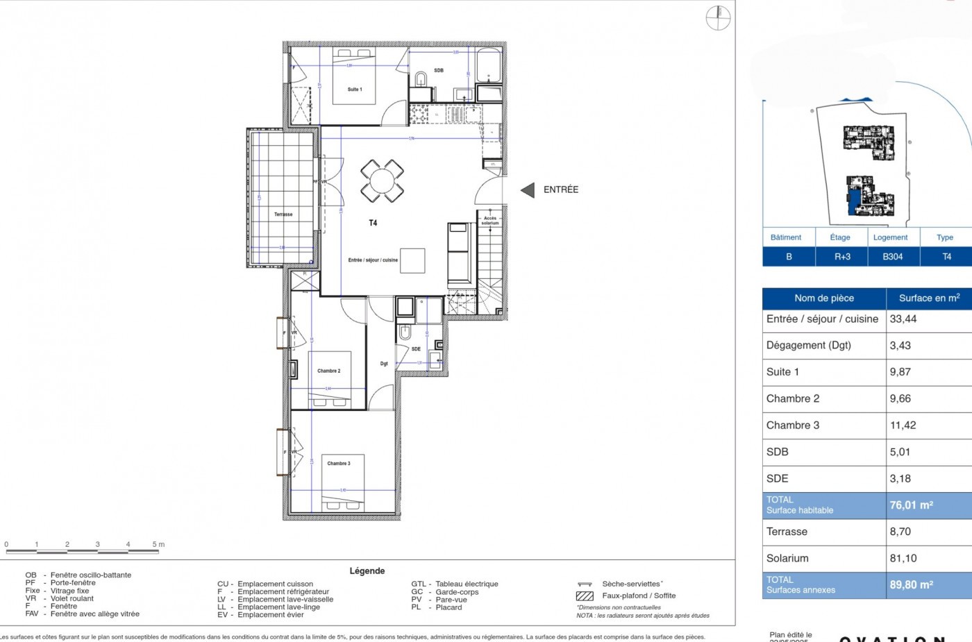
- 76 m²
- 4 pièce(s)
- 3 chambre(s)
- NC
Vivez l’exception au dernier étage : un appartement 4 pièces baigné de lumière, avec vaste séjour-cuisine, suite parentale, et un spectaculaire solarium privé de 81 m² pour profiter pleinement du ciel azuréen!
Découvrez une résidence intimiste et élégante, à seulement 8 minutes à pied des plages et 5 minutes des commerces. Idéalement située dans un environnement résidentiel paisible, cette adresse offre un quotidien pratique avec les arrêts de bus à proximité.
Livrée au 4e trimestre 2027, la résidence se compose de petits bâtiments de 3 étages, conçus dans une démarche éco-responsable, avec piscine, pool house, espaces paysagers, rooftops privatifs et cave pour chaque appartement.
Appartements du 2 au 4 pièces encore disponibles :
• 2P à partir de 235 000 € (14 lots)
• 3P à partir de 465 000 € (12 lots)
• 4P à partir de 770 000 € (2 lots)
Les logements, lumineux et fonctionnels, bénéficient d’extérieurs bien exposés, de prestations soignées et de jardins en rez-de-chaussée.
Un cadre de vie moderne, convivial et serein, idéal pour habiter ou investir sur la Côte d’Azur.
Ne manquez pas l’offre en cours – contactez-nous pour plus d’informations.
Notre barème d'honoraires
* Honoraires charge vendeur.
cette annonce à un ami
Veuillez réessayer à nouveau








