| NIVEAU | PIÈCE | SURFACE |
Nice – Libération – Appartements d’exception avec rooftop et vue impériale
NICE (06000)
- 85 m²
- 3 pièce(s)
- 2 chambre(s)
- NC
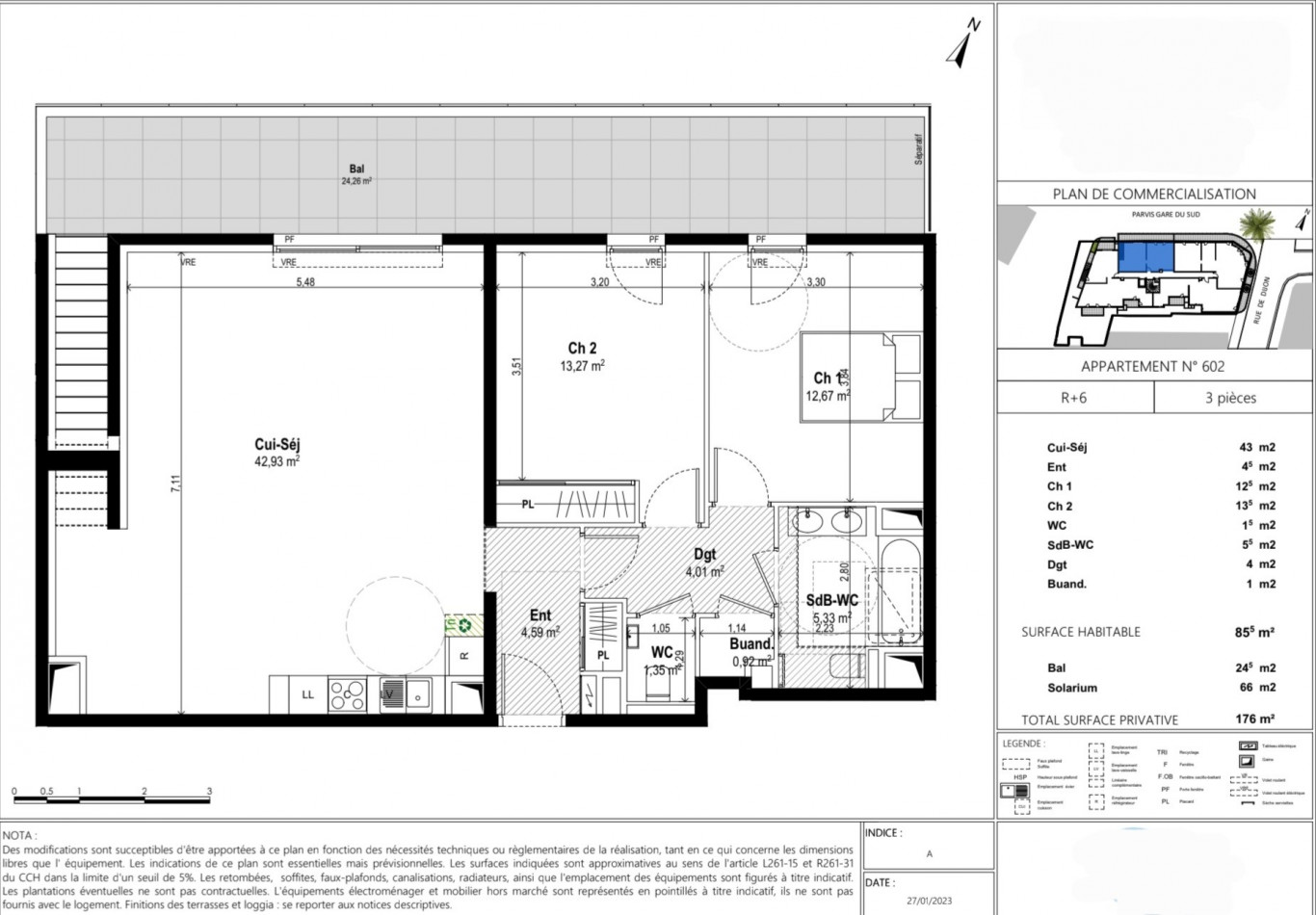
Au 6è et dernier étage, l'appartement fait 85 m² et dispose d'une terrasse et d'un solarium de 66 m² en roof-top (possibilité jacuzzi). Séjour/cuisine de 43 m², 2 chambres, buanderie, 1 salle de bains avec WC et WC séparés. Belles prestations, nombreux placards.
Au cœur du quartier prisé de la Libération, découvrez une résidence contemporaine offrant encore quelques appartements spacieux de 3 à 5 pièces.
Chaque logement séduit par ses volumes généreux, ses finitions haut de gamme et ses vastes espaces extérieurs.
Les derniers étages dévoilent de superbes solariums rooftop privatifs, idéaux pour profiter d’une vue impériale sur les toits de Nice et ses collines.
Pensée pour allier confort et innovation, la résidence propose un logement connecté, sécurisé et évolutif.
Un cadre de vie unique, à deux pas des commerces, restaurants et de la Gare du Sud, au cœur d’un quartier vivant et recherché.
Livraison prévue en 2026 – Frais de notaire réduits
Une opportunité rare pour habiter ou investir sur la Côte d’Azur.
Les informations sur les risques auxquels ce bien est exposé sont disponibles sur le site Géorisques : https://www.georisques.gouv.fr
Notre barème d'honoraires
* Honoraires charge vendeur.
cette annonce à un ami
Veuillez réessayer à nouveau












