| NIVEAU | PIÈCE | SURFACE |
Villeneuve-Loubet/ Parc Vaugrenier/Neuvelle Appartement 3P/ Dernier étage/ Aperçu mer
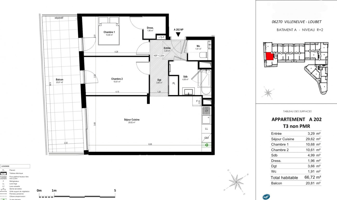
VILLENEUVE-LOUBET- A PROXIMITÉ DU PARC VAUGRENIER (06270)
- 66 m²
- 3 pièce(s)
- 2 chambre(s)
- NC
Appartement 3P au 2ème et dernier étage, avec une belle terrasse de 21m2 et un aperçu mer!
Dans un quartier résidentiel prisé, entre le Parc naturel de Vaugrenier et la mer Méditerranée, découvrez une résidence contemporaine de standing.
Dernières opportunités pour acquérir un appartement 3 pièces avec une remise jusqu'à 24 000 € sur le prix.
A seulement 13 minutes à pied de la mer et des plages, cette adresse confidentielle propose un cadre de vie privilégié : piscine sur le toit, jardins privatifs, rooftops avec jacuzzi en option, et de spacieux extérieurs pour profiter du climat azuréen.
Chaque logement offre des prestations haut de gamme, un parking en sous-sol, et pour certains, une vue mer.
Livraison 3T/2025 – Idéal résidence principale, secondaire ou investissement.
Contactez-nous pour obtenir plus d’information sur la remise exceptionnelle.
Notre barème d'honoraires
* Honoraires charge vendeur.
cette annonce à un ami
Veuillez réessayer à nouveau












