| NIVEAU | PIÈCE | SURFACE |
Prix 235 000 € *
Villa récente T4 de plain pied sur terrain 800m²
VINCA (66320)
Ref
75011157370
Ref
21249
- 90 m²
- 4 pièce(s)
- 3 chambre(s)
- 740 m²
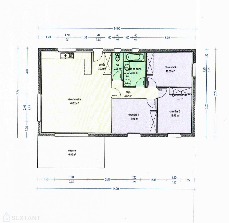
Secteur Vinça. Hors lotissement. Secteur résidentiel calme. Sur un terrain clos de 740m² à l'arrosage agricole , une villa de plain pied 4 faces état neuf offrant une surface habitable de 92 m² : entrée, séjour avec cuisine ouverte équipée ouvrant sur terrasse et jardin, 3 chambres dont une suite parentale avec douche à l'italienne, salle d'eau avec douche à l'italienne, toilettes séparées Sextant France - Solveig PAGES agent basé à VINCA - 06 80 91 94 26 - Plus d'informations sur www.sextantfrance.fr réf. 21249 Honoraires TTC charge vendeur Agent CommercialLes informations sur les risques auxquels ce bien est exposé sont disponibles sur le site Géorisques
* Honoraires charge vendeur.
Ce bien ne figure plus au catalogue car il a été vendu.
Diagnostics de
performance énergétique

Montant estimé des dépenses annuelles d'énergie pour un usage standard: entre 810,00€ et 1 096,00€ par an.
Prix moyen des énergies indexés au 01/01/2021 (abonnement compris)
Voir le descriptif des pièces
À proximité
de ce bien ...
Découvrez
nos biens similaires ...
Maison de village
FANLAC
232 000 €*
Corps de ferme
SAINT NIC
231 000 €*
Maison individuelle
LOUVIERS
240 000 €*
Maison
SOTTEVILLE LES ROUEN
230 000 €*
Corps de ferme
THIVIERS
241 000 €*
ou
Envoyer
cette annonce à un ami
cette annonce à un ami
Votre E-mail a bien été envoyé.
Une erreur s'est produite lors de l'envoi de votre e-mail.
Veuillez réessayer à nouveau
Veuillez réessayer à nouveau
































