| NIVEAU | PIÈCE | SURFACE |
Nice – Carré d’Or – Dernier étage avec terrasse panoramique
NICE (06000)
- 78 m²
- 3 pièce(s)
- 2 chambre(s)
- NC
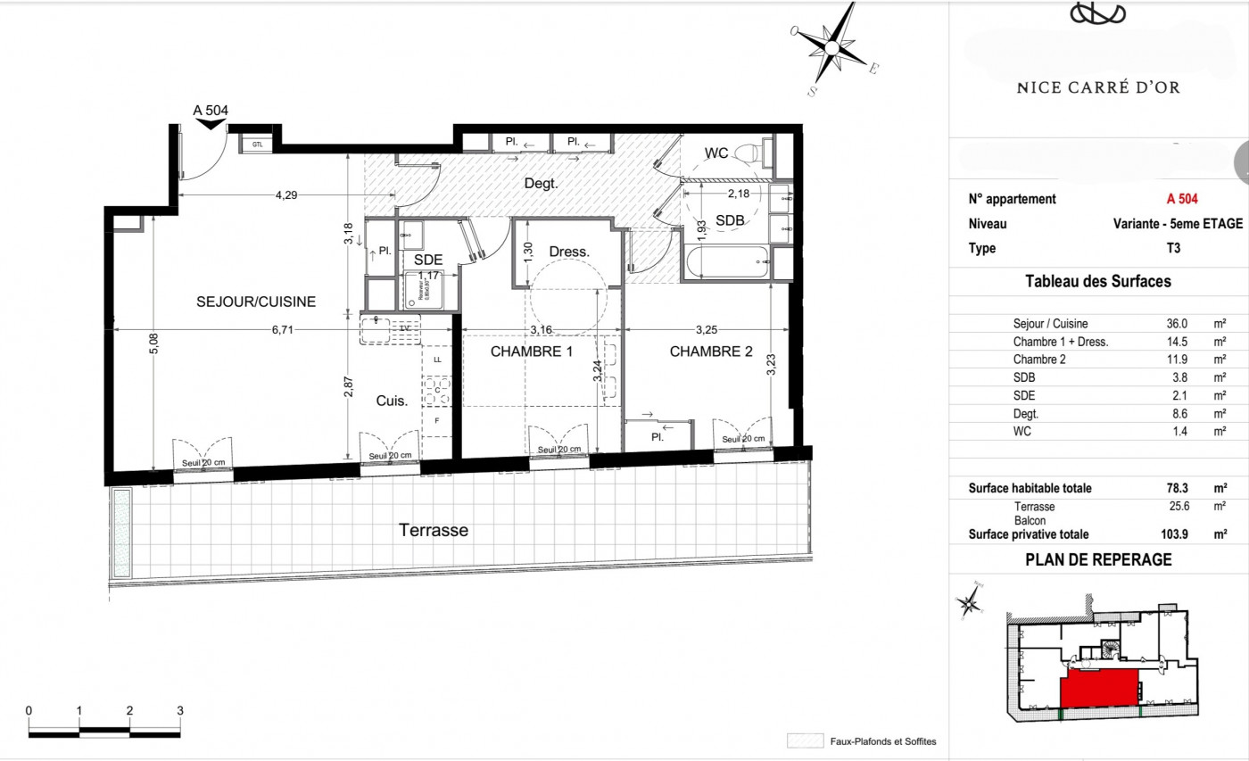
Au 6ème et dernier étage d’une résidence neuve haut de gamme, découvrez ce magnifique 3 pièces spacieux et lumineux, offrant une grande terrasse avec une vue dégagée sur les toits de Nice et la ville.
Située dans le prestigieux Carré d’Or, à seulement quelques pas de Nice Étoile, Galeries Lafayette, des restaurants, boutiques et à 10 minutes à pied des plages et du Vieux-Nice, cette adresse réunit confort de vie, élégance et centralité.
La résidence, au style niçois contemporain, se compose de seulement 29 appartements et propose des prestations de standing, un parking sécurisé et l’offre spéciale-frais de notaire offerts.
Livraison prévue 4 trimestre 2025 – Idéal pour une résidence principale, secondaire ou un investissement patrimonial.
Derniers lots disponibles – à partir de 990 000 €.
Offre spéciale en cours — Contactez-nous vite pour en profiter !
Notre barème d'honoraires
* Honoraires charge vendeur.
cette annonce à un ami
Veuillez réessayer à nouveau
















