| NIVEAU | PIÈCE | SURFACE |
INVESTISSEMENT LOCATIF – CHARTRES – Résidence Affaires Cap West Chartres - 9,52 de rentabilité
CHARTRES (28000)
- 40 m²
- 2 pièce(s)
- 1 chambre(s)
- NC
Réalisez un investissement locatif sécurisé en résidence de services sans souci de gestion : le produit idéal pour vous constituer un patrimoine immobilier tout en bénéficiant d’une rentabilité sécurisée par des loyers stables, dès l'acquisition.
• Loyer annuel HT : 5 998.16
• Rentabilité : 9,52
• Gestionnaire : Cap West
Vous bénéficiez du statut fiscal LMNP amortissable, permettant une exonération d’impôt sur vos revenus locatifs. Le bien est exploité par un gestionnaire professionnel (Cap West), engagé par un bail commercial, vous assurant le versement des loyers dès l’acquisition, que le logement soit loué ou non.
Description du bien :
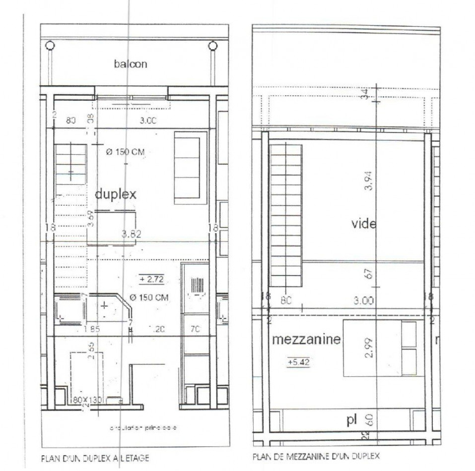
Cet appartement T2 en duplex situé au rez-de-chaussée offre une disposition fonctionnelle et optimisée : une entrée avec coin cuisine, une salle d'eau avec wc, un séjour et une mezzanine. Parking.
À propos de la résidence :
La résidence Cap West Chartres est une résidence d'Affaires idéalement située à Chartres, à proximité de la zone d’activités du Parc d’Archevilliers, des commerces et des grands axes routiers, à quelques minutes du centre-ville et de la gare. Sa localisation à proximité immédiate de l’autoroute A11 et à environ 1 heure de Paris renforce son attractivité
L'établissement propose un ensemble de services : accueil, parking sécurisé, vidéosurveillance, laverie, salle de sport, accès internet haut débit et espaces communs, au sein d’une copropriété composée de nombreux logements meublés et équipés.
A propos du gestionnaire occupant :
Cap West est un exploitant spécialisé dans les résidences affaires, présent sur l’ensemble du territoire français, reconnu pour son expertise en gestion locative et la qualité de son accompagnement investisseurs.
Le coin du LMNP - Grégoire Déporte agent basé à NEUILLY SUR SEINE - 01 84 78 46 50 - Plus d'informations sur info@lecoindulmnp.fr réf. 26117 Bien soumis au statut juridique de la Copropriété. Charges annuelles de copropriété (Montant moyen annuel quote-part du budget prévisionnel vendeur) : 1 152,96 €. Pas de procédure en cours. Honoraires à la charge du vendeur
Notre barème d'honoraires Bien meublé.
* Honoraires charge vendeur.

Montant estimé des dépenses annuelles d'énergie pour un usage standard: entre 544,00€ et 736,00€ par an.
Prix moyen des énergies indexés au 01/01/2021 (abonnement compris)
cette annonce à un ami
Veuillez réessayer à nouveau






