| NIVEAU | PIÈCE | SURFACE |
Nice – Quartier du Port : Résidence neuve dans un quartier dynamique et recherché
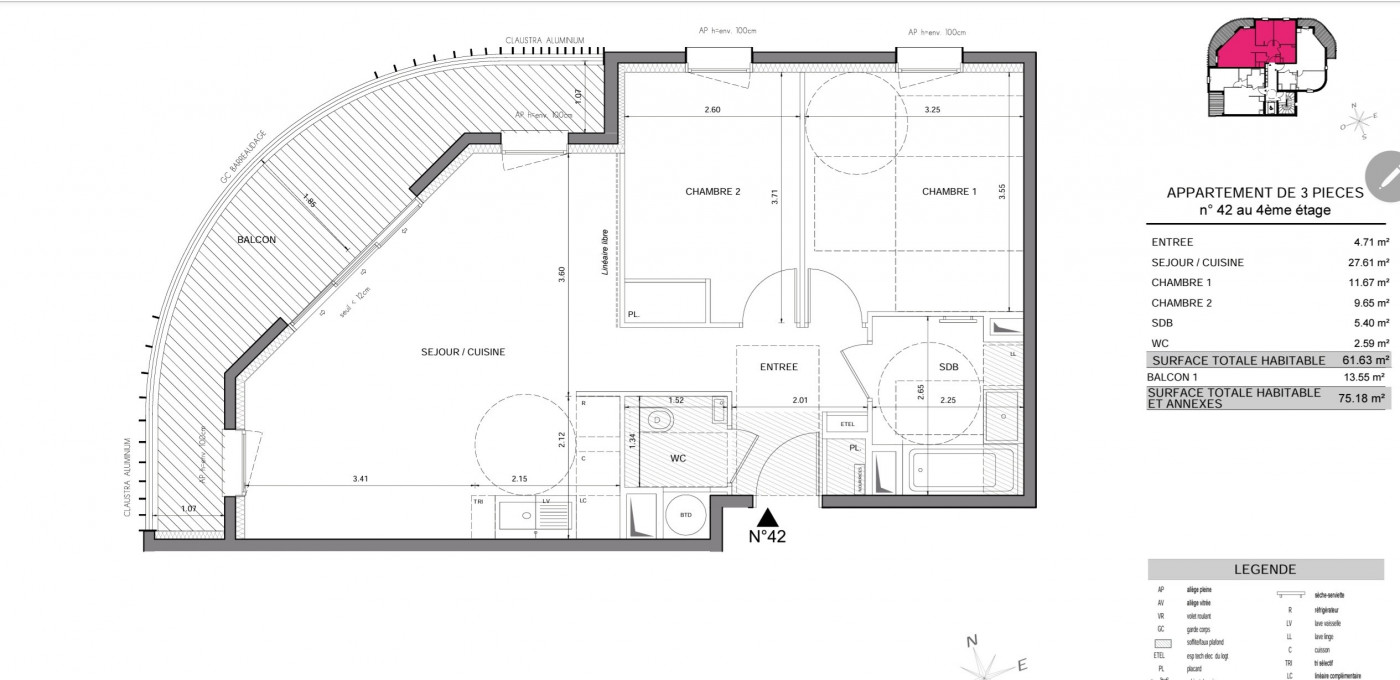
NICE (06300)
- 61 m²
- 3 pièce(s)
- 2 chambre(s)
- NC
À quelques minutes à pied du port de Nice, découvrez cette nouvelle résidence confidentielle de seulement 12 appartements, du 2 au 4 pièces, située dans l’un des quartiers les plus recherchés et en développement de la ville.
Les appartements bénéficient d’une belle luminosité, des séjours d’angle ensoleillés, cuisines ouvertes, et de beaux extérieurs : balcons ou loggias confortables.
A pied ou a vélo tout est accessible: commerces (3 min), Place du Pin et Garibaldi (5 min), écoles et campus universitaire (6 min), Vieux-Nice (8 min), plages et Promenade des Anglais (7 min à vélo).
Une opportunité rare pour habiter ou investir dans un quartier central, vivant et à fort potentiel.
Livraison : 2T/ 2028 Frais de notaire rédréduits. Paiements par tranches.
2P appartement - 3 lots- prix a partir de 390 000€
3P appartement- 5 lots - prix a partir de 595 000€ (parking inclus)
4P appartement – 2 lots – prix a partir de 860 000€ (parking inclus)
Les informations sur les risques auxquels ce bien est exposé sont disponibles sur le site Géorisques : https://www.georisques.gouv.fr
Notre barème d'honoraires
* Honoraires charge vendeur.
cette annonce à un ami
Veuillez réessayer à nouveau












