| NIVEAU | PIÈCE | SURFACE |
INVESTISSEMENT LOCATIF – PORNIC - Résidence Cap West Pornic - 6,36% de rentabilité.
PORNIC (44210)
- 26 m²
- 1 pièce(s)
- NC chambre(s)
- NC
Réalisez un investissement locatif, sans soucis de gestion, le produit idéal pour préparer son avenir et se constituer un patrimoine immobilier avec une rentabilité sécurisée.
• Loyer annuel HT : 4451€/an
• Rentabilité : 6,36%.
• Gestionnaire : Cap West
Vous pourrez opter pour le statut fiscal « LMNP amortissable », donnant droit à une exonération d'impôt sur les revenus locatifs. Le paiement des loyers est assuré que votre bien soit loué ou non.
Description du bien :
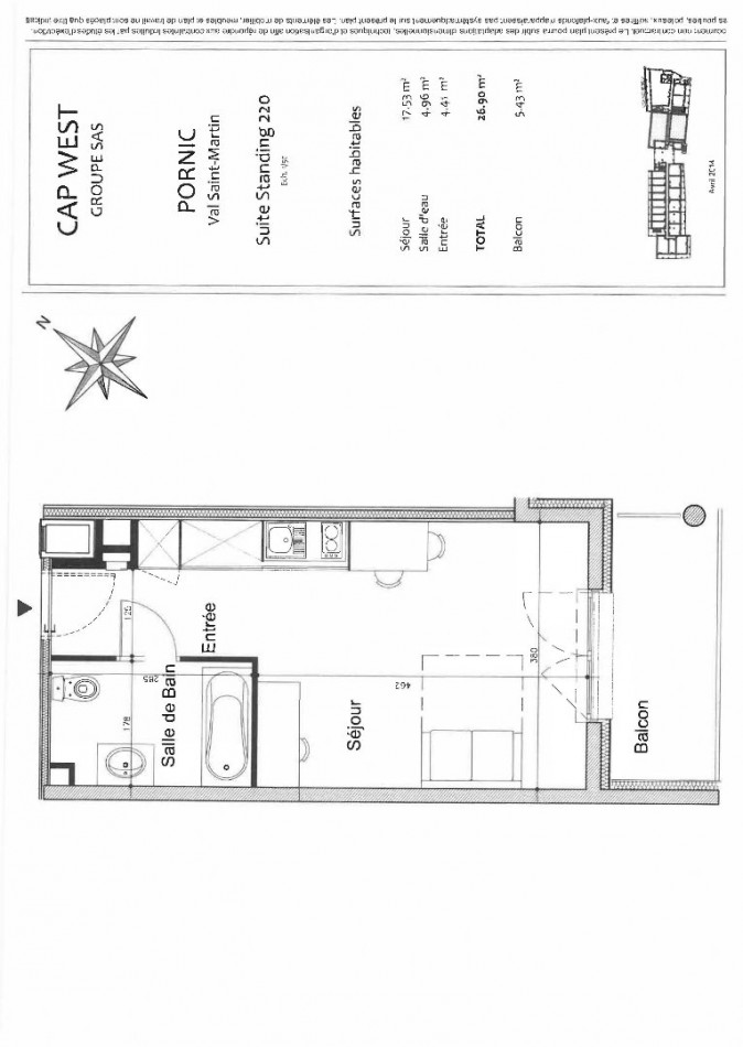
- Appartement T1 situé au 2ème étage, comprenant entrée avec placards, séjour avec kitchenette, salle de bains avec wc, jouissance privative et exclusive d'un balcon, parking intérieur.
- La résidence Affaires Cap West Pornic est idéalement située à Pornic en plein cœur de ville. Elle offre des espaces, des services et un environnement verdoyant. Elle se trouve à seulement 20 minutes en voiture de St-Nazaire et à 50 minutes de Nantes.
Le coin du LMNP - Charlène Levignac agent basé à NEUILLY SUR SEINE - 01 84 78 46 50 - Plus d'informations sur info@lecoindulmnp.fr réf. 23885 Bien soumis au statut juridique de la Copropriété. Charges annuelles de copropriété (Montant moyen annuel quote-part du budget prévisionnel vendeur) : 143 €. Pas de procédure en cours. Prix TTC et Honoraires à charge vendeur TTC
* Honoraires charge vendeur.
cette annonce à un ami
Veuillez réessayer à nouveau






